
Fall 2021
Semester #5
2021 DLR Competition Winner
Aaron Koopal
Griffin Lilly
Semester #5
2021 DLR Competition Winner
Aaron Koopal
Griffin Lilly
At its most basic form, a connection is the negotiation of material. When two pieces come together, each must acknowledge the other. It tells a story of compromise, justification, and final resolution: negotiation creates dialogue, and dialogue creates story.
Speaking on strictly material terms, a building is simply a series of parts. Parts are assembled with other parts – creating systems – systems are used to create forms – forms then which dictate light, shadow, mass, void, and other phenomena.
Each piece plays a subtle, yet significant role in the larger makeup of what is. The whole cannot exist without each of the parts. As we examine pieces and parts more closely within the realm of architecture, we’ve began to notice that they tell a story about what is. Material has the ability to show process, create moments of reflection, and speak to broader themes of making.
What’s left is delicate relationship between the part and it’s whole. These two aspects of architecture contribute to the subtle arrangement of material, their connections, and overall strategy.
Speaking on strictly material terms, a building is simply a series of parts. Parts are assembled with other parts – creating systems – systems are used to create forms – forms then which dictate light, shadow, mass, void, and other phenomena.
Each piece plays a subtle, yet significant role in the larger makeup of what is. The whole cannot exist without each of the parts. As we examine pieces and parts more closely within the realm of architecture, we’ve began to notice that they tell a story about what is. Material has the ability to show process, create moments of reflection, and speak to broader themes of making.
What’s left is delicate relationship between the part and it’s whole. These two aspects of architecture contribute to the subtle arrangement of material, their connections, and overall strategy.
This project seeks to take advantage of these qualities, thereby using these negotiations to create a narrative about our own architecture – its process and context. By doing so, we have developed a framework of understanding architecture as a system of parts.
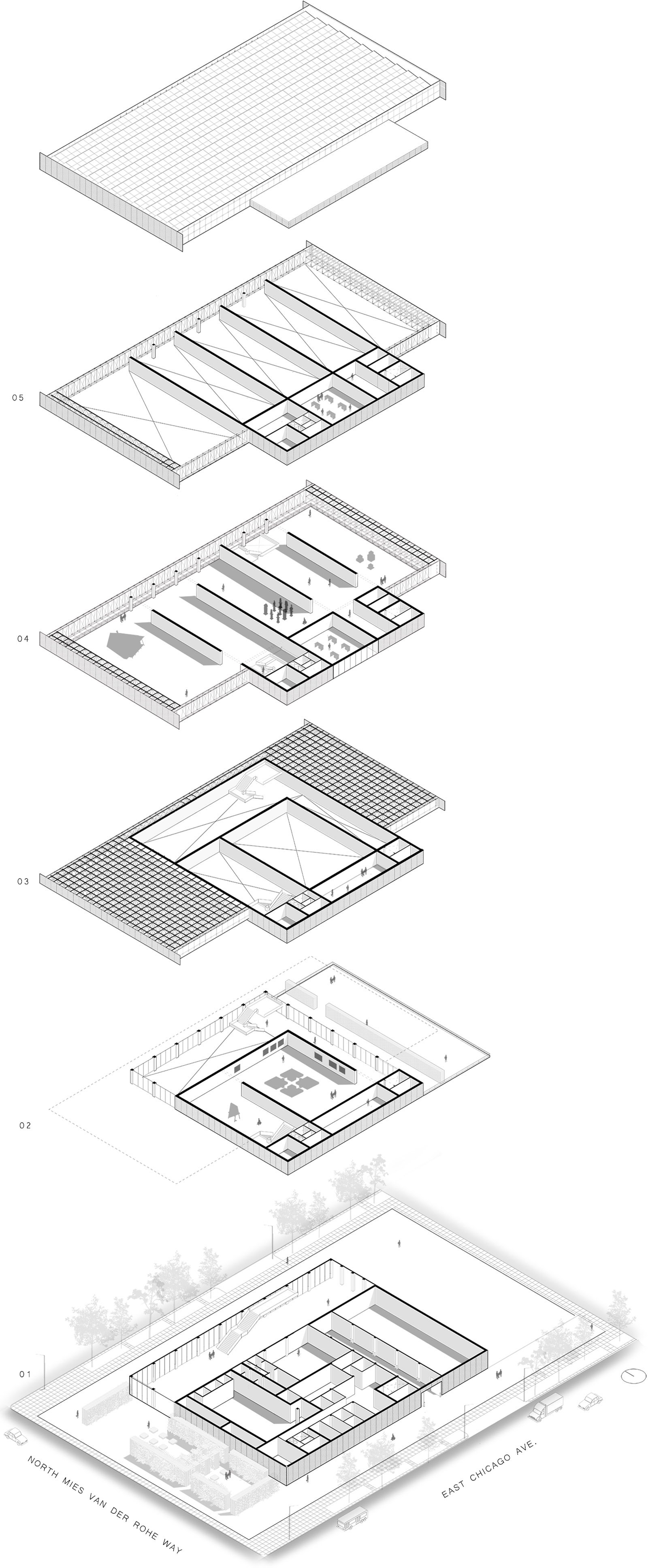
Overall, this project is a holistic reinterpretation of the Museum of Contemporary Arts in Downtown Chicago. We sought to imagine a philosophical response to the post-modern qualities of the existing architecture that is both hostile and unnavigable and remedy many of the existential issues the museum faces due to these issues.
In addition to this, we are emphasizing a didactic approach to the proposal as both a framework for considering the process of the renovation itself as well as a creating an architecture that is honest with its material conditions as to emphasize the importance of tactility, rawness, and the human touch.
Overall, this project is a holistic reinterpretation of the Museum of Contemporary Arts in Downtown Chicago. We sought to imagine a philosophical response to the post-modern qualities of the existing architecture that is both hostile and unnavigable and remedy many of the existential issues the museum faces due to these issues.
In addition to this, we are emphasizing a didactic approach to the proposal as both a framework for considering the process of the renovation itself as well as a creating an architecture that is honest with its material conditions as to emphasize the importance of tactility, rawness, and the human touch.